欢迎访问山东万辰试验机有限公司官网!
1、 非结构承载用石材胶粘剂又称云石胶。云石胶分为环氧树脂和不饱和树脂两种原料制作,不饱和树脂制作的云石胶的某种可以在潮湿的环境中固化,效果也很好。另外,云石胶性能的优良主要体现在硬度、韧性、快速固化、抛光性、耐候、耐腐蚀等方面。
云石胶基于不饱和聚酯树脂,适用于各类石材间的粘接或修补石材表面的裂缝和断痕,常用于各类型铺石工程及各类石材的修补、粘接定位和填缝。
这里需要注意的是:该测试方案不适用于作为永久性结构承载粘结用的胶粘剂。
2、测试目标:压剪粘结强度(单位Mpa)
3、相关试验标准:
JCT 989-2006 非结构承载用石材胶粘剂
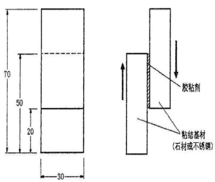
4、试样的制备和尺寸
石材基材要求有足够高的强度,而不锈钢基材要求采用奥氏体不锈钢。

5、试验设备标准配置:主机+夹具
5.1、主机:我们推荐使用电子万能试验机
5.2、夹具:石材胶粘剂剪切夹具
夹具说明:如图,通过两个方向的夹紧块能够很好固定住试样,之后移动上压头来进行试验。



微信客服

微信公众号
Copyright 山东万辰试验机有限公司 鲁ICP备14026932号
15550432072
